

VFPS系列岸电专用变频电源,基于太阳成集团tyc711123年在电力电子行业专业经验和对港口岸电系统需求了解的基础上开发出的一种高性能、清洁能源替代解决方案,被广泛应用到国内外港口、电机厂出厂测试电源、风机水泵出厂测试电源、压缩机厂试验电源等领域,取得了显著的经济效益和社会效益。


一次方案示意图(我司钦州港项目)
2.2 VFPS系列高压变频电源原理
VFPS系列岸电电源系统采用“单元串联多电平”的拓扑结构,“高-高”直接输入输出方式,通过移相多重化技术降低输入侧谐波,减小对电网的谐波污染;各相输出电压由多个功率单元,通过SPWM波形调制与叠加而成,降低了输出电压谐波含量和输出电压dv/dt变化率。

VFPS系列岸电电源系统采用功率单元串联的形式,电压叠加的原理类似于“电池组叠加”技术。当需要6.6kV输出时,每相串联6个功率单元,每个功率单元输出的交流有效值为634V,相电压3810V,线电压6600V。每个单元最高可以输出690V,系统最高可以输出7170V。
VFPS系列岸电电源系统由18个功率单元构成,每6个单元串联构成一相,移相变压器输入侧为36脉冲整流,输出线电压满调制25电平,输出侧三相构成Y型接法,直接给船用系统供电。

VFPS系列岸电电源控制器采用DSP+ARM+FPGA的模式,基于多重数字微处理器技术,各芯片采取行业主流配置,分工明确各自发挥各自的特长,DSP主频150M专门的电机控制芯片处理运算算法,ARM丰富的外部接口便于实现各种借口和控制功能,FPGA强大的数据处理能力,和丰富的接口保证了主控制器和每个单元之间的通信及故障反馈;主控制器处理速度达到了纳秒级别确保不出现“死机”现象,可靠性高,运算速度快,相比单片机为核心器件组成的主控系统,具有明显的优势。

控制系统为变频器核心控制单元,既要协调所有功率单元工作和控制,又要实现负载及岸电电源系统本身的各种保护功能,同时也实现与用户控制系统之间开关量、模拟量的输入输出信号控制。控制系统和功率单元之间采用高速光纤通讯,保证控制系统和高压电源之间在电气上完全隔离,系统具有极高的安全性和抗干扰能力。
主控系统主要由主控板、外部接口及一些检测电路构成。电气控制接口负责电气开关的控制以及用户操作指令的接收。主控板由主控电路、监控电路、液晶人机界面通讯接口、电压电流检测电路以及光纤通讯电路组成。主控电路负责PWM脉冲的计算并通过光纤通讯电路发送到功率单元,液晶人机界面负责与参数设置以及状态显示等。
VFPS系列高压变频电源技术参数
内容 | 参数 | 备注 | |
输入 | 额定输入电压 | 3相10kV(-20%~+15%) | |
额定输入频率 | 50Hz±5% | ||
功率因数 | ≥0.95(负载大于20%) | ||
输出 | 额定输出电压 | 6kV/50Hz 6.6kV/60Hz | |
基本性能 | 过载能力 | 120%/60min; 150%/1min(每30S一次,共三次); 200%~400%反时限保护 | 保护曲线可设置 |
电源系统效率 | ≥97% | ||
变频电源功率柜满载效率 | ≥98.5% | ||
频率分辨率 | 0.01Hz | ||
输出电压总谐波失真度(THDu) | ≤2% | ||
输出电流总谐波失真度(THDi) | ≤3% | ||
三相阻抗不平衡输出能力 | ≥25% | ||
稳态电压波动范围 | -1%≤稳态≤1% | ||
暂态电压波动范围 | -3%≤暂态≤3%,50%突加突卸 | ||
稳态频率波动范围 | -0.05%≤稳态≤0.05% | ||
暂态频率波动范围 | -4%≤暂态≤4%,50%突加突卸 | ||
电压突变恢复时间 | ≤0.5s | ||
频率突变恢复时间 | ≤0.5s | ||
操控界面 | 显示 | 多语言彩色触摸屏人机界面,能同时显示输入、输出电压、电流、功率等基本电气参数,及实时运行状态,报警记录及事件记录功能 | |
设置 | 多功能参数设置 | ||
操作 | 本地、远控、上位机通讯 | ||
控制 | 模拟输入/输出量 | 3路模拟量输入、4路模拟量输出 电压型或电流型可设置 输入输出功能可设置0(4)~20mA,0(2)~10V等7种类型可选 | |
数字输入/输出量 | 8路数字量输入、5路数字量输出(可扩展 内部虚拟REV/FWD等38种数字输入功能可设置 报警/故障等52中数字输出功能可设置 | ||
通讯功能 | MODBUS-RTU、PROFIBUS-DP、TCP/IP (协议阶段确定) | ||
控制电源容量 | 单相220VAC或三相380VAC 3KVA 双电源冗余 | ||
保护功能 | 变频电源:过流保护、过载保护、短路保护、三相电流不平衡、瞬时掉电保护、输入输出缺相保护、过压保护、欠压保护、过热保护、接地保护、外部故障联锁停机保护、单元自动旁路、逆功率保护、无功抑制。 功率单元:输入缺相保护,欠压保护,过压失速保护,过压保护,过流保护,超温保护,NTC断线保护,上行通讯保护,下行通讯保护,模块故障保护。 | ||
环境及其它 | 环境温度/湿度 | -15℃~45℃(超过45℃降额运行),5%~95%(无凝露) | |
海波高度 | <1000米 | ||
冷却方式 | 强迫风冷 | ||
防护等级 | IP30(标配)/IP40(选配无尘新风) | ||
安全性能 | 符合标准EN 61800-5-1 | ||
防震性能 | 符合标准EN 50274/BGV A3 | ||
2.4 VFPS系列高压变频电源特点
1) 针对岸电电源工作特点,在岸电电源高压侧有防励磁涌流限流功能,当没有连船时,系统损耗接近等于零。当需要连船时,合高压瞬间,没有涌流发生,合闸次数不受限制;
2) 为降低电网对于电源的谐波影响,同时也避免给电网造成更多谐波,变频电源采用单元串联多电平方案,通过移相由低脉波数整流器构成的高脉波数整流系统将整流器中的相位抵消,其网侧电流仅含36k±1及以上次谐波,而且各次谐波的有效值与其谐波次数成反比,而与基波有效值的比值是谐波次数的倒数。岸电系统逆变侧采用高载波逆变设计和输出滤波,功率因数≥0.95,保证输出电压总谐波失真度THD<2%;
3) 变频电源装置控制器采用DSP+ARM+FPGA的模式,采用多重数字微处理器的配置,各芯片采用最先进的配置,分工明确各自发挥各自的特长,DSP主频150M专门的电机控制芯片处理运算算法,ARM丰富的外部接口便于实现各种借口和控制功能,FPGA强大的数据处理能力,和丰富的接口保证了主控制器和每个单元之间的通信及故障反馈;主控制器处理速度达到了纳秒级别确保不出现“死机”现象;
4) 变频电源效率≥98.5%(100%负荷);
5) 重载设计,当船舶上有大功率负载启动时,能够不受影响,1.2倍过载60分钟,1.5倍过载1分钟,2~4倍反时限保护,保护曲线可设置。针对连船并网瞬间有可能产生逆功率和船上变压器充电的无功交互,通过硬件设计加软件设计,可以有效抑制并网过程中产生的各种冲击情况,使连船成功率100%;
6) 逆功率反抑制技术,在并网过程中因船用同期并网系统存在检查误差,导致在并网过程中会产生逆功率。我方针对此类情况开发的逆功率反抑制技术能够自动检测逆功率并实现自动调节,通过软件控制从根源上抑制逆功率的产生,彻底解决逆功率问题,系统可靠性行业领先。
7) 变压器绝缘等级为H级,温升级别为B级考核;
8) 防护等级:IP30;
9) 采用模块化设计,冗余设计,维护方便,可靠性高;
10) 内部通讯网络采用光纤网络,通讯传输速度快,抗干扰能力强;
11) 系统控制电源采用双电源冗余供电,一路可接收AC220V、DC220V
12) 一键启动功能,自动调相功能,减少操作维护工作量,使操作更简单,连船更高效;
13) 自动稳压功能,当电网电压波动时,通过内部PID闭环控制,实现输出电网不随电网波动而波动,不随负载波动而改变;
14) 五防功能设计,防止误操作事件发生,使系统更加的安全。针对港口使用的特殊环境,采用专门的防盐雾防腐蚀处理技术;
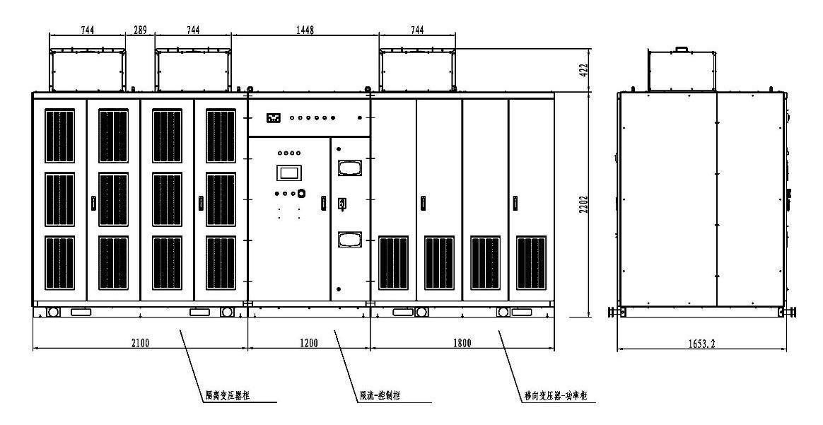
2.5 VFPS系列高压变频电源尺寸

1MW高压变频器电源尺寸(包含隔离变压器)
不同型号尺寸如下:
容量(MW) | 型号 | 宽(m) | 深(m) | 高(m) |
1 | VFPS-100-066-1000 | 3 | 1.65 | 2.2 |
2 | VFPS-100-066-2000 | 5.3 | 1.5 | 2.3 |
3 | VFPS-100-066-3000 | 5.3 | 1.5 | 2.3 |
5 | VFPS-100-066-5000 | 6 | 1.5 | 2.5 |
8 | VFPS-100-066-8000 | 6.34 | 1.8 | 2.5 |